电脑桌面
添加小米粒文库到电脑桌面
安装后可以在桌面快捷访问

ENRJXB系列变压器中性点间隙接地保护装置

ENRJXB系列变压器中性点间隙接地保护装置_第1页
1/5
ENRJXB系列变压器中性点间隙接地保护装置_第2页
2/5
ENRJXB系列变压器中性点间隙接地保护装置_第3页
3/5
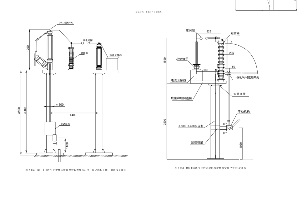
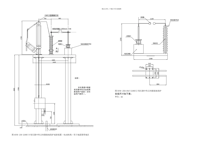
S 代表手动机构D 代表电动机构系统电压等级变压器中性点间隙接地保护成套装置保定市伊诺尔电气设备有限公司精品文档---下载后可任意编辑一、 概述1、ENR-JXB 型变压器中性点间隙接地保护装置专用于 110KV、220KV、330KV、500KV 电力变压器中性点,以实现变压器中性点接地运行或不接地运行两种不同的运行方式;从而避开由于系统故障,引发变压器中性点电压升高造成对变压器的损害。本产品广泛应用于电力、冶金、石化、建筑、环保等领域。2、一般来说,棒间隙为极不均匀电场,放电电压不稳定分散性大从而决定了其保护性能差。球间隙为均匀电场放电电压稳定,分散性小保护性能好。球间隙现场调试比较容易,用户可根据自己地区情况现场调试;而棒间隙尖顶特别难对准,所以现场调试难度大。球间隙采纳不锈钢球表面镀银、成本高并且固定要求高,所以许多厂家为降低成本而采纳棒间隙,但是并没有考虑使用效果。3、电流互感器选用:采纳环氧树脂浇注的干式电流互感器。电流互感器装在不锈钢箱体里,不受环境气候影响,使用寿命长。使保护不会出现误动或拒动且稳定可靠。二、 技术数据ENR-JXB 型变压器中性点间隙接地保护装置的技术数据如下表:产品的型号及技术参数ENR—JXB— / 三、 产品特点1、符合标准,专业制造ENR-JXB 型变压器中性点间隙接地保护装置严格根据GB1985-2024《高压沟通隔离开关和接地开关》GB/T11022-1999《高压开关设备和控制设备的共用技术要求》GB11032-2000《沟通无间隙金属氧化物避雷器》DL/T620-1997《沟通电气装置的过电压保护及绝缘配合》GB5583-1985 《互感器局部放电测量》DL/T620-1997《沟通电气装置的过电压保护和绝缘配合》、《高压输变电设备的绝缘配合》及“国家电网公司十八项电网重大反事故措施”等国家及行业标准的有关规定设计、并配套专门的工艺流程、检验流程和设备,保证产品制造的流程化、标准化和专业化。2、设计新颖,整体安装ENR-JXB 型变压器中性点间隙接地保护装置集隔离开关、氧化锌避雷器、放电间隙和电流互感器等电气设备于一体的成套设备,具有体积小,安装调试方便,可靠性高的特点。3、有效保护,特性稳定ENR-JXB 型变压器中性点间隙接地保护装置主要采纳球形放电间隙方式,比惯用的棒形放电间隙放电电压准确率高、分散性小、特性稳定,与避雷器特性及主要变压器的绝缘配合精确、充分有效,热容量大,不易烧损。提高了保护安全性和保护效果。4、组配灵活,使用方便ENR-JXB 型变压器中...

1、当您付费下载文档后,您只拥有了使用权限,并不意味着购买了版权,文档只能用于自身使用,不得用于其他商业用途(如 [转卖]进行直接盈利或[编辑后售卖]进行间接盈利)。
2、本站所有内容均由合作方或网友上传,本站不对文档的完整性、权威性及其观点立场正确性做任何保证或承诺!文档内容仅供研究参考,付费前请自行鉴别。
3、如文档内容存在违规,或者侵犯商业秘密、侵犯著作权等,请点击“违规举报”。

碎片内容

ENRJXB系列变压器中性点间隙接地保护装置

您可能关注的文档

确认删除?
VIP
微信客服
  • 扫码咨询
会员Q群
  • 会员专属群点击这里加入QQ群
客服邮箱
回到顶部