电脑桌面
添加小米粒文库到电脑桌面
安装后可以在桌面快捷访问

9#、11#楼落地单立杆计算书

9#、11#楼落地单立杆计算书_第1页
1/8
9#、11#楼落地单立杆计算书_第2页
2/8
9#、11#楼落地单立杆计算书_第3页
3/8
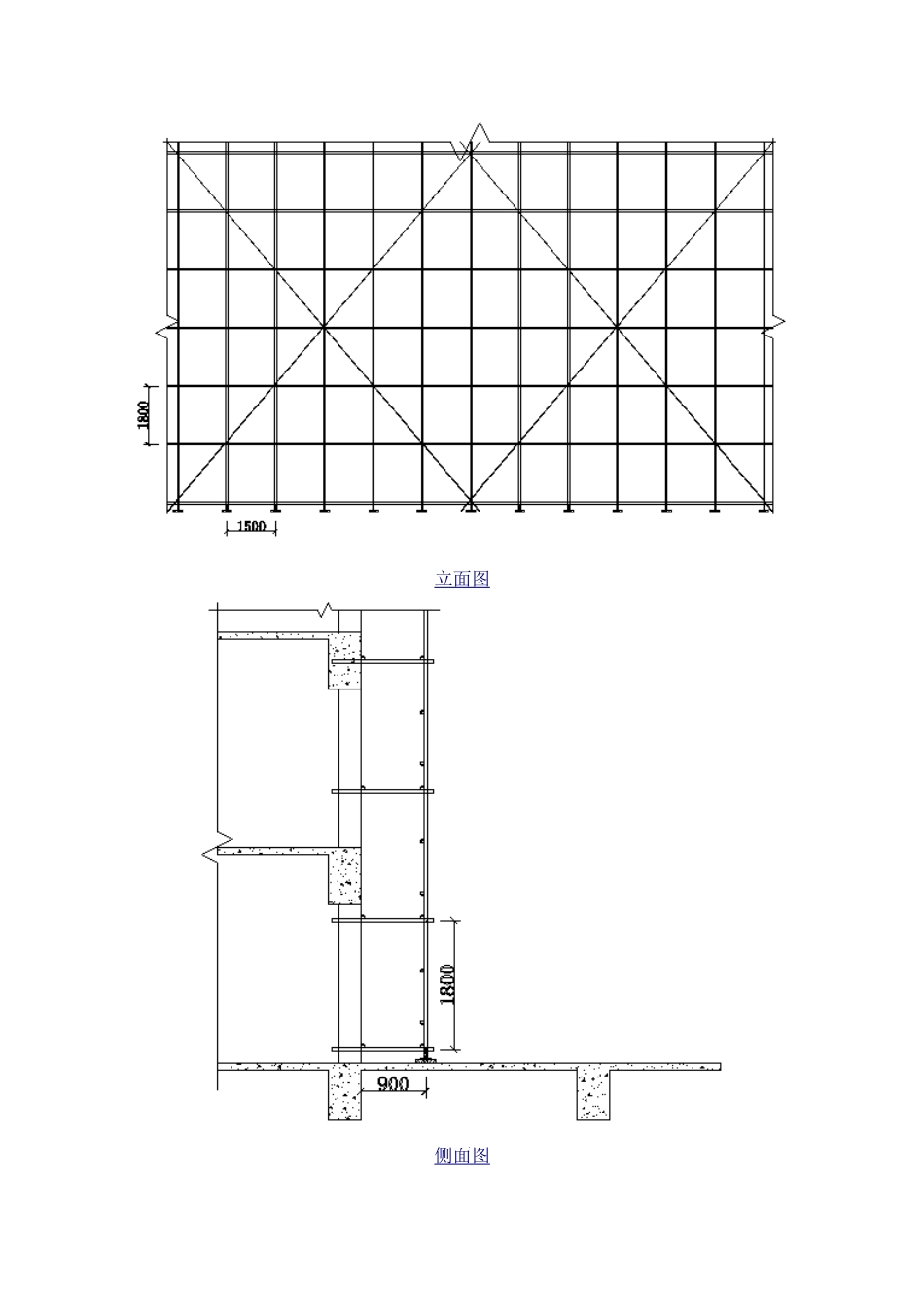
9#、11#楼落地单立杆扣件式脚手架计算书 计算依据: 1、《建筑施工扣件式钢管脚手架安全技术法律规范》JGJ130-2025 2、《建筑地基基础设计法律规范》GB50007-2025 3、《建筑结构荷载法律规范》GB50009-2025 4、《钢结构设计法律规范》GB50017-2025 一、脚手架参数脚手架设计类型结构脚手架脚手板设计荷载(kN/m2)3同时施工作业层数1卸荷设置无脚手架搭设方式单排脚手架脚手架钢管类型Ф48×3脚手架架体高度H(m)10.61脚手架沿纵向搭设长度L(m)243立杆步距h(m)1.8立杆纵距或跨距la(m)1.5立杆横距lb(m)0.9双立杆计算方法不设置双立杆 二、荷载设计脚手板类型竹串片脚手板脚手板自重标准值Gkjb(kN/m2)0.35脚手板铺设方式1步1设密目式安全立网自重标准值Gkmw(kN/m2)0.01挡脚板类型竹串片挡脚板栏杆与挡脚板自重标准值Gkdb(kN/m)0.14挡脚板铺设方式1步1设每米立杆承受结构自重标准值gk(kN/m)0.129结构脚手架作业层数njj1结构脚手架荷载标准值Gkjj(kN/m2)3地区浙江宁波市安全网设置全封闭基本风压ω0(kN/m2)0.3风荷载体型系数μs1.254风压高度变化系数μz(连墙件、单立杆稳定性)1.06,0.796风荷载标准值ωk(kN/m2)(连墙件、单立杆稳定性)0.399,0.299 计算简图:立面图侧面图 三、纵向水平杆验算纵、横向水平杆布置方式纵向水平杆在上横向水平杆上纵向水平杆根数n2横杆抗弯强度设计值[f](N/mm2)205横杆截面惯性矩I(mm4)107800横杆弹性模量E(N/mm2)206000横杆截面抵抗矩W(mm3)4490纵、横向水平杆布置 承载能力极限状态 q=1.2×(0.033+Gkjb×lb/(n+1))+1.4×Gk×lb/(n+1)=1.2×(0.033+0.35×0.9/(2+1))+1.4×3×0.9/(2+1)=1.426kN/m 正常使用极限状态 q'=(0.033+Gkjb×lb/(n+1))+Gk×lb/(n+1)=(0.033+0.35×0.9/(2+1))+3×0.9/(2+1)=1.038kN/m 计算简图如下: 1、抗弯验算 Mmax=0.1qla2=0.1×1.426×1.52=0.321kN·m σ=Mmax/W=0.321×106/4490=71.457N/mm2≤[f]=205N/mm2 满足要求! 2、挠度验算 νmax=0.677q'la4/(100EI)=0.677×1.038×15004/(100×206000×107800)=1.602mm νmax=1.602mm≤[ν]=min[la/150,10]=min[1500/150,10]=10mm 满足要求! 3、支座反力计算 承载能力极限状态 Rmax=1.1qla=1.1×1.426×1.5=2.353kN 正常使用极限状态 Rmax'=1.1q'la=1.1×1.038×1.5=1.713kN 四、横向水平杆验算 承载能力极限状态 由上节可知F1=Rmax=2.353kN q=1.2×0.033=0.04kN/m 正常使用极限状态 由上节可知F1'=Rmax'=1....

1、当您付费下载文档后,您只拥有了使用权限,并不意味着购买了版权,文档只能用于自身使用,不得用于其他商业用途(如 [转卖]进行直接盈利或[编辑后售卖]进行间接盈利)。
2、本站所有内容均由合作方或网友上传,本站不对文档的完整性、权威性及其观点立场正确性做任何保证或承诺!文档内容仅供研究参考,付费前请自行鉴别。
3、如文档内容存在违规,或者侵犯商业秘密、侵犯著作权等,请点击“违规举报”。

碎片内容

9#、11#楼落地单立杆计算书

您可能关注的文档

一帆文传+ 关注
实名认证
内容提供者

欢迎光临店铺,各类公文供您挑选。

相关文档

确认删除?
VIP
微信客服
  • 扫码咨询
会员Q群
  • 会员专属群点击这里加入QQ群
客服邮箱
回到顶部