电脑桌面
添加小米粒文库到电脑桌面
安装后可以在桌面快捷访问

装修用扣件式落地双排脚手架计算书VIP免费

装修用扣件式落地双排脚手架计算书_第1页
1/16
装修用扣件式落地双排脚手架计算书_第2页
2/16
装修用扣件式落地双排脚手架计算书_第3页
3/16
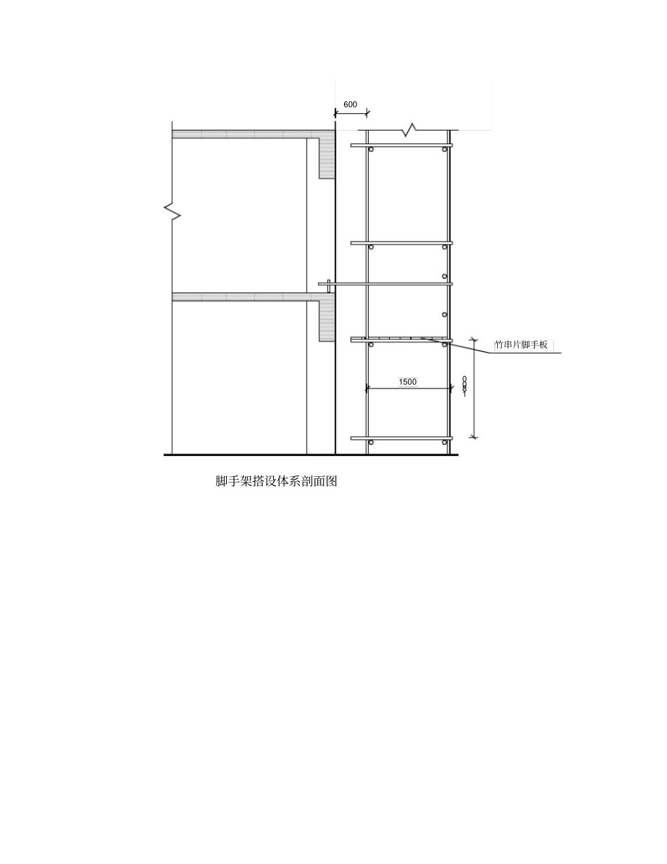
扣件式落地双排脚手架计算书计算依据:《建筑施工扣件式钢管脚手架安全技术规范》(JGJ130-2011)《建筑地基基础设计规范》(GB50007-2011)《建筑结构荷载规范》(GB50009-2012)《钢结构设计规范》(GB50017-2003)一、参数信息1.脚手架搭设参数脚手架从地面开始搭设搭设高度(m)23顶步栏杆高(m)1.1内立杆距墙(m)0.6立杆步距(m)1.8总步数12立杆纵距(m)1.5立杆横距(m)1.5小横杆伸出内立杆长度(m)0.3扫地杆距地(m)0.3采用小横杆在上布置,搭接在大横杆上的小横杆根数为1根钢管类型Φ48×3.5连墙件布置方式二步二跨连墙件连接方式扣件连接连墙件扣件连接方式单扣件扣件抗滑承载力折减系数1脚手架沿墙纵向长度(m)502.荷载参数(1)活荷载参数装修脚手架均布活荷载(kN/m2)2装修脚手架同时施工层数2(2)风荷载参数工程地理位置湖北宜昌市基本风压(kN/m2)0.2地面粗糙度类别B类(城市郊区)(3)静荷载参数1)脚手板参数选用竹串片脚手板,按规范要求铺脚手板脚手板自重(kN/m2)0.35铺设层数22)防护栏杆仅作业层设防护栏杆每步防护栏杆根数2总根数43)围护材料2300目/100cm2,A0=1.3mm2密目安全网全封闭密目网规格2300目/100cm2,A0=1.3mm2密目网自重(kN/m2)0.01密目网自重(kN/m2)0.01上半步高度(m)0.815001800600竹串片脚手板脚手架搭设体系剖面图18001500脚手架搭设体系正立面图15006001500脚手架搭设体系平面图二、小横杆的计算小横杆在大横杆的上面,考虑活荷载在小横杆上的最不利布置,验算强度和挠度时不计小横杆的悬挑荷载,小横杆按照简支梁进行强度和挠度计算。1.均布荷载值计算作用在小横杆上的荷载标准值:q=0.038+0.350×1.5/2+2×1.5/2=1.801kN/m;作用在小横杆上的荷载设计值:q=1.2×(0.038+0.350×1.5/2)+1.4×2×1.5/2=2.461kN/m;2.强度验算最大弯矩M=ql2/8=2.461×1.52/8=0.692kN.m;最大应力计算值σ=M/W=0.692×106/5.08×103=136.256N/mm2;小横杆实际弯曲应力计算值σ=136.256N/mm2小于抗弯强度设计值[f]=205N/mm2,满足要求!3.挠度验算最大挠度ν=5ql4/384EI=5.0×1.801×15004/(384×2.06×105×12.19×104)=4.727mm;小横杆实际最大挠度计算值ν=4.727mm小于最大允许挠度值min(1500/150,10)=10.000mm,满足要求!三、大横杆的计算小横杆在大横杆的上面,小横杆把荷载以集中力的形式传递给大横杆,所以,大横杆按照集中力作用下的三跨连续梁进行强度和挠度计算。计算小横杆传递给大横杆的集中力时,计入小横杆的悬挑荷载。1.小横杆传递给大横杆的集中力计算内排大横杆受到的集中力标准值:F=0.5qlb(1+a1/lb)2=0.5×1.801×1.5×(1+0.3/1.5)2=1.945kN;内排大横杆受到的集中力设计值:F=0.5qlb(1+a1/lb)2=0.5×2.461×1.5×(1+0.3/1.5)2=2.658kN;外排大横杆受到的集中力标准值:F=0.5qlb[1+(a1/lb)2]=0.5×1.801×1.5×[1+(0.3/1.5)2]=1.405kN;外排大横杆受到的集中力设计值:F=0.5qlb[1+(a1/lb)2]=0.5×2.461×1.5×[1+(0.3/1.5)2]=1.920kN;2.大横杆受力计算大横杆按三跨(每跨中部)均有集中活荷载分布计算,由脚手架大横杆试验可知,大横杆按照三跨连续梁计算是偏于安全的,按以上荷载分布进行计算可以满足要求并且与我国工程长期使用经验值相符。根据实际受力情况进行电算,得到计算简图及内力、变形图如下(内排大横杆、外排大横杆计算方式完全相同,下面是内排大横杆的计算过程,外排大横杆计算过程从略,仅给出最终计算结果):1500150015007507507507507507500.046kN/m2.658kN2.658kN2.658kN2.658kN2.658kN2.658kN2.658kN弯矩和剪力计算简图0.7050.6080.4010.6080.705弯矩图(kN·m)0.9580.9231.7351.7691.3641.3291.3291.3641.7691.7350.9230.958剪力图(kN)1500150015007507507507507507500.038kN/m1.945kN1.945kN1.945kN1.945kN1.945kN1.945kN1.945kN变形计算简图3.0720.151变形图(mm)计算得到内排大横杆:最大弯矩:M=0.705kN.m最大变形:ν=3.072mm最大支座反力:F=5.791kN计算得到外排大横杆(计算过程从略):最大弯矩:M=0.512kN.m最大变形:ν=2.233mm最大支座反力:F=4.203kN3.强度验算最大应力计算值σ=0.705×106/5.08×103=138.876N/mm2;大横杆...

1、当您付费下载文档后,您只拥有了使用权限,并不意味着购买了版权,文档只能用于自身使用,不得用于其他商业用途(如 [转卖]进行直接盈利或[编辑后售卖]进行间接盈利)。
2、本站所有内容均由合作方或网友上传,本站不对文档的完整性、权威性及其观点立场正确性做任何保证或承诺!文档内容仅供研究参考,付费前请自行鉴别。
3、如文档内容存在违规,或者侵犯商业秘密、侵犯著作权等,请点击“违规举报”。

碎片内容

装修用扣件式落地双排脚手架计算书

您可能关注的文档

文库当当响+ 关注
实名认证
内容提供者

该用户很懒,什么也没介绍

确认删除?
VIP
微信客服
  • 扫码咨询
会员Q群
  • 会员专属群点击这里加入QQ群
客服邮箱
回到顶部