电脑桌面
添加小米粒文库到电脑桌面
安装后可以在桌面快捷访问

WQ2屋面吊VIP专享VIP免费

WQ2屋面吊_第1页
1/8
WQ2屋面吊_第2页
2/8
WQ2屋面吊_第3页
3/8
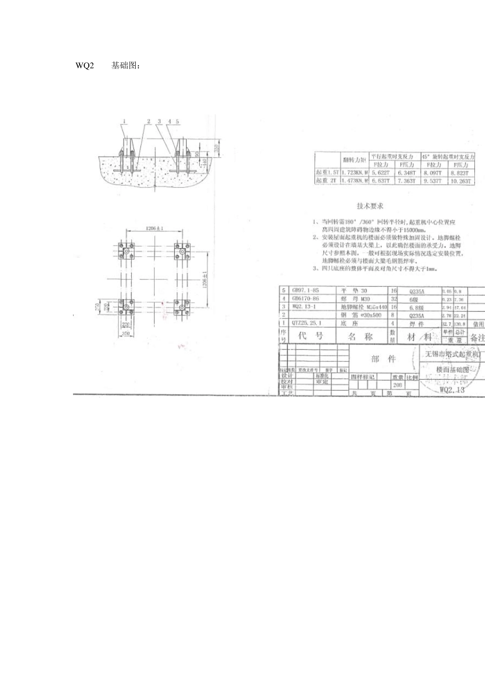
W Q2基础图: W Q2 各部件重量表 序号 部件名称 外形尺寸 数量 单重 1 吊钩 215×710×940 1 150 406×840×2460 1 258 2 平衡臂 421×852×2770 1 333 3 起重臂架 15205×780×503 10 最重1804 下支座 600×1300×1300 1 386 5 起升机构 1800×1200×800 1 1300 6 变幅机构 1500×900×2100 1 1300 7 变幅定滑轮组 590×550×250 16 50 8 前撑杆 3660×820×160 1 132 9 后拉杆 2600×820×315 1 126 10 上支座 406×840×2460 1 280 11 变幅动滑轮组 700×350×600 1 95 12 起升机构部件 1 300 13 回转机构 500×500×1230 1 294 14 电器总控制箱 350×1300×1450 1 180 15 平衡重框 406×840×2460 1 100 16 平衡重 2900 起重性能 WQ2 起重性能表: WQ2 技术参数: 起升机构 M5 回转机构 M4 机构工作级别 变幅机构 M4 工作仰角 80° 15° 工作幅度 3.5m 14m 最大起重量 2t 1.5t 电机型号 YZR160M-6 电机功率 7.5KW 减速机型号 JZQ500-2-Ⅷ-F 起升速度 10m/min 制动器型号 YWZ300/45 绳筒直径 295φmm 起 升 机 构 钢丝绳规格 6*19W-11-1550-FC 电机型号 YZR132M-6 回 电机功率 2.2KW 转 减速机型号 XX4-40-157.5 机 回转速度 0.78r/min 构 回转支撑 0.11.40.900 m=8 z=130 电机型号 Y112M-4 变 电机功率 4KW 幅 变幅速度 2.44m/min 机 构 钢丝绳 6*19(w)-9-155 操纵形式 操作台 转换开关、按钮 WQ2 外形: WQ2 部件尺寸及重量: 序号 名称 外形尺寸(m m ) 数量 重量(kg) 1 吊钩 215*710*940 1 150 2 臂架 15205*780*503 1 1038 406*840*2460 1 258 3 平衡臂 421*852*2770 1 333 4 底座 350*350*35 4 132 5 下支座 600*1300*1300 1 388 6 起升机构 1800*1200*800 1 1300 7 变幅定滑轮组 590*550*250 1 50 8 前撑杆 3660*820*160 1 132 9 后拉杆 2600*820*315 1 126 10 上支座 1284*1030*450 1 280 11 变幅动滑轮组 535*300*204 1 30 12 操纵箱 23 13 回转机构 500*500*1230 1 294 14 平衡重 2900

1、当您付费下载文档后,您只拥有了使用权限,并不意味着购买了版权,文档只能用于自身使用,不得用于其他商业用途(如 [转卖]进行直接盈利或[编辑后售卖]进行间接盈利)。
2、本站所有内容均由合作方或网友上传,本站不对文档的完整性、权威性及其观点立场正确性做任何保证或承诺!文档内容仅供研究参考,付费前请自行鉴别。
3、如文档内容存在违规,或者侵犯商业秘密、侵犯著作权等,请点击“违规举报”。

碎片内容

确认删除?
VIP
微信客服
  • 扫码咨询
会员Q群
  • 会员专属群点击这里加入QQ群
客服邮箱
回到顶部