电脑桌面
添加小米粒文库到电脑桌面
安装后可以在桌面快捷访问

盘扣式脚手架计算书78605

盘扣式脚手架计算书78605_第1页
1/11
盘扣式脚手架计算书78605_第2页
2/11
盘扣式脚手架计算书78605_第3页
3/11
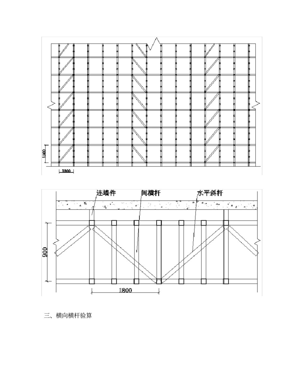
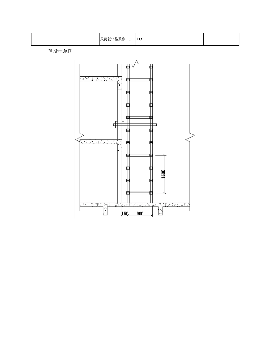
盘扣式脚手架计算书计算依据:1、《建筑施工承插型盘扣式钢管支架安全技术规程》 JGJ231-2010 2、《建筑地基基础设计规范》GB50007-2011 3、《建筑结构荷载规范》 GB50009-2012 4、《钢结构设计规范》 GB50017-2003 一、脚手架参数脚手架架体高度 H(m) 13.4 脚手架沿纵向搭设长度L(m) 25 立杆纵向间距 la(m) 1.8 立杆横向间距 lb(m) 0.9 立杆步距 h(m) 1.5 脚手架总步数 n 8 顶部防护栏杆高 h1(m) 1.2 纵横向扫地杆距立杆底距离h2(mm) 200 内立杆离建筑物距离a(mm) 150 脚手架立杆安放位置混凝土板二、荷载设计脚手板类型冲压钢脚手板脚手板自重标准值Gkjb(kN/m 2) 0.35 脚手板铺设方式6步 1设密目式安全立网自重标准值Gkmw(kN/m2) 0.01 挡脚板类型冲压钢脚手板挡板栏杆与挡脚板自重标准值Gkdb(kN/m) 0.17 挡脚板铺设方式6步 1设装修脚手架作业层数nzj1 装修脚手架荷载标准值Qkzj(kN/m2) 2 风荷载标准值 ωk(kN/m 2)(连墙件、立杆稳定性 ) 基本风压 ω0(kN/m 2) 0.4 0.688, 0.445 风荷载高度变化系数 μz(连墙件、立杆稳定性 ) 1.687, 1.09 风荷载体型系数μs1.02 搭设示意图三、横向横杆验算横向横杆钢管类型A-SG-1500 横向横杆自重 Gkhg(kN) 0.05 单跨间横杆根数 njg2 间横杆钢管类型B-SG-1500 间横杆自重 Gkjg(kN) 0.043 纵向横杆钢管类型B-SG-1500 纵向横杆自重 Gkzg(kN) 0.043 横向横杆抗弯强度设计值(f)(N/mm 2) 205 横向横杆截面惯性矩I(mm 4) 92800 横向横杆弹性模量E(N/mm 2) 206000 横向横杆截面抵抗矩W(mm 3) 3860 承载力使用极限状态q=1.2 ×(Gkhg/l b+Gkjb×la/(njg+1) )+1.4×Qkzj × l a /( njg +1) =1.2 ×(0.050/0.9+0.35×1.8/(2+1))+1.4×2.0 ×1.8/(2+1)=1.999kN/m 正常使用极限状态q'=(Gkhg/l b+Gkjb×l a/(njg+1) )+Q kzj × la /( njg +1) =(0.050/0.9+0.35×1.8/(2+1))+2.0×1.8/(2+1)=1.466kN/m 计算简图如下1、抗弯验算M max=qlb2/8=1.999 ×0.92/8=0.202kN ·m σ =Mmax/W=0.202 ×106/3860=52.43N/mm2≤[f]=205N/mm2 满足要求。2、挠度验算V max=5q'l b4/(384EI)=5×1.466 ×9004/(384 ×206000×92800) =0.65mm≤[ ν ]=min[l b/150,10] = min[900/150,10] =6mm 满足要求。3、支座反力计算承载力使用极限状态R1=R2= qlb/2=1.999 ×0.9/2=0.899kN 正常使用极限状态R1'=...

1、当您付费下载文档后,您只拥有了使用权限,并不意味着购买了版权,文档只能用于自身使用,不得用于其他商业用途(如 [转卖]进行直接盈利或[编辑后售卖]进行间接盈利)。
2、本站所有内容均由合作方或网友上传,本站不对文档的完整性、权威性及其观点立场正确性做任何保证或承诺!文档内容仅供研究参考,付费前请自行鉴别。
3、如文档内容存在违规,或者侵犯商业秘密、侵犯著作权等,请点击“违规举报”。

碎片内容

盘扣式脚手架计算书78605

文库响当当+ 关注
实名认证
内容提供者

该用户很懒,什么也没介绍

相关文档

确认删除?
VIP
微信客服
  • 扫码咨询
会员Q群
  • 会员专属群点击这里加入QQ群
客服邮箱
回到顶部