电脑桌面
添加小米粒文库到电脑桌面
安装后可以在桌面快捷访问

带式制动矿用提升绞车淘汰理由

带式制动矿用提升绞车淘汰理由_第1页
1/6
带式制动矿用提升绞车淘汰理由_第2页
2/6
带式制动矿用提升绞车淘汰理由_第3页
3/6
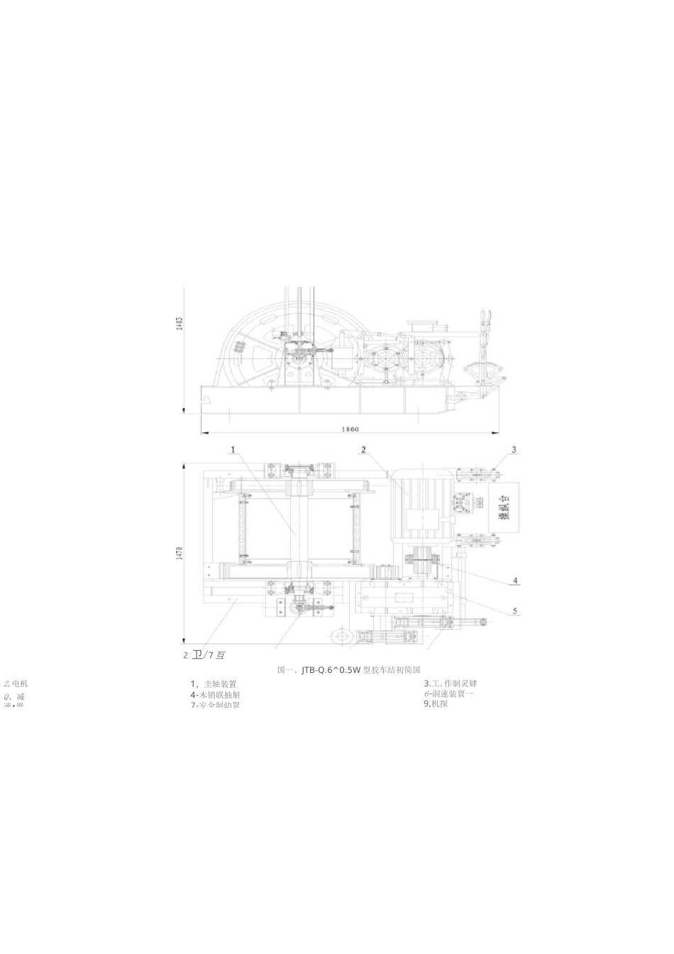
带式制动矿用提升绞车带式制动矿用提升绞车是用于煤矿井下及矿山地面移动式的或辅助性的专为升降运输物料(包括矸石山和向天桥上提升等)的设备。其结构、制动、安全保护、可靠性等将直接影响矿山的安全生产。带式制动矿用提升绞车严禁用于载人。带式制动矿用提升绞车由于产品结构限制,采用手动操作径向刹卷筒的带式工作闸,制动力矩小,存在带绳跑和放飞车潜在安全隐患;安全闸采用电力液压推动器式制动器,刹在电动机输出轴与减速器输入轴连接的带制动轮的联轴器上,除电动机外的传动零部件损坏时,安全制动器无法产生作用。卷筒为薄壁厚支型,轮辐厚、卷筒及制动轮受力后易开裂。该提升绞车工作制动和安全制动分离控制,制动器的工作和安全制动不同步,无二次制动,安全性较差,使用中事故率较高。而且带式制动矿用提升绞车的电气控制部分相当简单,所有保护基本都通过矿方单独配置的后被保护装置予以实现。而目前很多矿方为减少成本,往往均不配备后被保护装置。因此对带式制动矿用提升绞车的安全性能带来极大影响。1,圭轴装置4-木销联抽斛7-安全制幼眾2,电机Q、减速•器3.工.作制灵肄6-洞速装貿一9.机探国一、JTB-Q.6^0.5W 型狡车结初简国2/卫/7 互nn图二 JT-0.8XQ.6 型带式制动矿用提升绞车图三安全制动器1、箱体5、太阳轮轴9 联齿轴4、输出齿轮8、内齿圈图五、减速箱结构简图II 轴齿轮 3.II 轴1 轴齿轮 7、行星齿轮■调速轮 11、工作制动轮] 234,56 」 8 \\\11{f\\\\///\\冋\\I//1、圆锥齿轮图四、主轴结构简图2.轴承座及盖 3.大齿轮6.主轴 7.制动支轮4.木衬8.轴承5、卷筒图六1>联轴器结构简图2、尼龙棒销4、电机半联轴节i 卡爭----十14-k=l=ar图七、工作制动器结构简图1、制动手柄2、操纵座3、杠杆4、制动钢带5、石棉带6、调节螺杆7、短拐臂8、拐臂轴9、长拐臂54321图八 JTP 型矿用提升绞车综上所述,带式制动矿用提升绞车应禁止在煤矿使用。替代带式制动矿用提升绞车优先采用 JTP 系列矿井提升绞车,其结构合理,强度高,制动效果好,安全保护装置齐全。JTP 系列矿井提升绞车采用盘形制动器对卷筒直接进行末级轴向制动,制动力矩大,工作和安全制动采用共同使用 1 套闸瓦制动,操纵和控制机构分开控制,能很好的保证制动同步;制动采用具有双回路的液压站对卷筒进行制动,且具备二级制动或恒减速制动功能,工作稳定可靠,根本上杜绝带绳跑和放飞车的情况发生。JTP 系列矿井提升绞车能满足煤矿安全规规程对提升核装置要求的所有安全保护,且准确、可靠、稳定。

1、当您付费下载文档后,您只拥有了使用权限,并不意味着购买了版权,文档只能用于自身使用,不得用于其他商业用途(如 [转卖]进行直接盈利或[编辑后售卖]进行间接盈利)。
2、本站所有内容均由合作方或网友上传,本站不对文档的完整性、权威性及其观点立场正确性做任何保证或承诺!文档内容仅供研究参考,付费前请自行鉴别。
3、如文档内容存在违规,或者侵犯商业秘密、侵犯著作权等,请点击“违规举报”。

碎片内容

带式制动矿用提升绞车淘汰理由

wxg+ 关注
实名认证
内容提供者

该用户很懒,什么也没介绍

确认删除?
VIP
微信客服
  • 扫码咨询
会员Q群
  • 会员专属群点击这里加入QQ群
客服邮箱
回到顶部