电脑桌面
添加小米粒文库到电脑桌面
安装后可以在桌面快捷访问

盲道砖及做法

盲道砖及做法_第1页
1/25
盲道砖及做法_第2页
2/25
盲道砖及做法_第3页
3/25
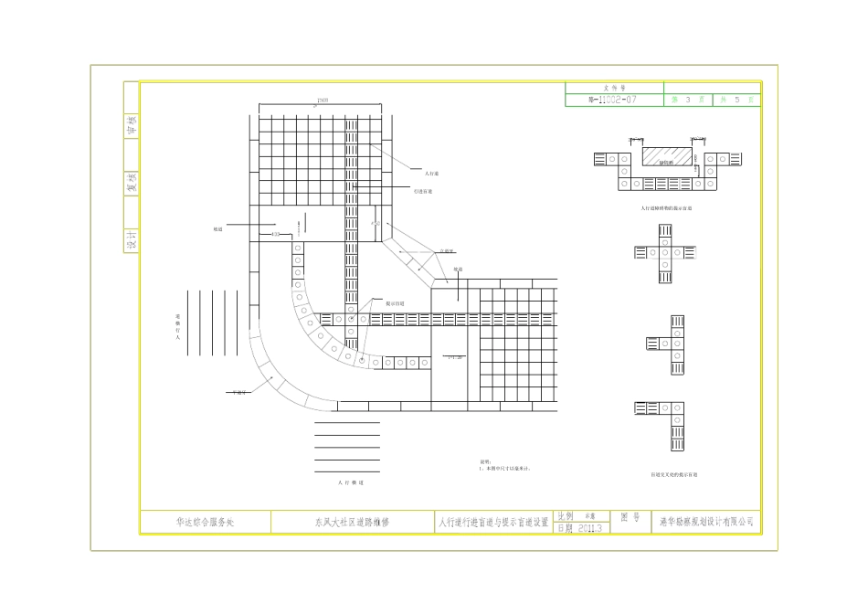
≥人行道行进盲道坡道i=1:20i=1:20人 行 横 道人 行 横 道立道牙提示盲道平道牙坡道障碍物250~500250~500250~500人行道障碍物的提示盲道盲道交叉处的提示盲道说明;1、本图中尺寸以毫米计。 3-32-21-1路口转角斜盲道砖行进盲道砖提示盲道砖123321透水砖大样图说明:1、本图中尺寸以毫米计;2、立道牙外侧0.4m范围透水砖及盲道为黄色,其余为铁红色。 路口转角斜盲道砖行进盲道砖提示盲道砖133122 4.1.1 缘石坡道设计应符合下列规定: 1 人行道的各种路口必须设缘石坡道; 2 缘石坡道应设在人行道的范围内, 并应与人行横道相对应; 3 缘石坡道可分为单面缘石坡道和三面缘石坡道; 4 缘石坡道的坡面应平整,且不应光滑; 5 缘石坡道下口高出车行道的地面不得大于20 m m 。 4.1.2 单面坡缘石坡道设计应符合下列规定: 1 单面坡缘石坡道可采用方形、长方形或扇形; 2 方形、长方形单面坡缘石坡道应与人行道的宽度相对应 (图4.1.2-1,图4.1.2-2,图4.1.2-3); 3 扇形单面坡缘石坡道下口宽度不应小于1.50 m (图4.1.2-4); 4 设在道路转角处单面坡缘石坡道上口宽度不宜小于2.00 m (图4.1.2-5); 5 单面坡缘石坡道的坡度不应大于1:20。 4.1.3 三面坡缘石坡道设计应符合下列规定: 1 三面坡缘石坡道的正面坡道宽度不应小于1.2m (图4.1.3); 2 三面坡缘石坡道的正面及侧面的坡度不应大于1:12(图4.1.3)。 4 .2 盲道 4.2.1 盲道设计应符合下列规定: 1 人行道设置的盲道位置和走向,应方便视残者安全行走和顺利到达无障碍设施位置; 2 指行残疾者向前行走的盲道应为条形的行进盲道(图4.2.1-1);在行进盲道的起点、终点及拐弯处应设圆点形的提示盲道 (图4.2.1-2); 3 盲道表面触感部分以下的厚度应于人行道砖一致(图4 .2 .1 -3 ); 4 盲道应连续,中途不得有电线杆、拉线、树木等障碍物; 5 盲道宜避开井盖铺设; 6 盲道的颜色宜为中黄色。 4.2.2 行进盲道的位置选择应按下列顺序,并符合下列规定: 1 人行道外侧有围墙、花台或绿地带,行进盲道宜设在距围墙、花台、绿地带 0.25~0.50 m 处 (图4.2.2-1); 2 人行道内侧有树池,行进盲道可设置在距树池0.25~0.5 m 处; 3 人行道没有树池,行进盲道距立缘石不应小于0.50 m; 4 行进盲道的宽度宜为0.30~0.60 m,可根据道路宽度选择低限或高限; 5 人行道成弧线形路线时,行进盲道宜与人行道走向一致; 6 行...

1、当您付费下载文档后,您只拥有了使用权限,并不意味着购买了版权,文档只能用于自身使用,不得用于其他商业用途(如 [转卖]进行直接盈利或[编辑后售卖]进行间接盈利)。
2、本站所有内容均由合作方或网友上传,本站不对文档的完整性、权威性及其观点立场正确性做任何保证或承诺!文档内容仅供研究参考,付费前请自行鉴别。
3、如文档内容存在违规,或者侵犯商业秘密、侵犯著作权等,请点击“违规举报”。

碎片内容

盲道砖及做法

您可能关注的文档

小辰2+ 关注
实名认证
内容提供者

出售各种资料和文档

相关标签

确认删除?
VIP
微信客服
  • 扫码咨询
会员Q群
  • 会员专属群点击这里加入QQ群
客服邮箱
回到顶部