电脑桌面
添加小米粒文库到电脑桌面
安装后可以在桌面快捷访问

“样板引路”样板区和样板层做法

“样板引路”样板区和样板层做法_第1页
1/58
“样板引路”样板区和样板层做法_第2页
2/58
“样板引路”样板区和样板层做法_第3页
3/58
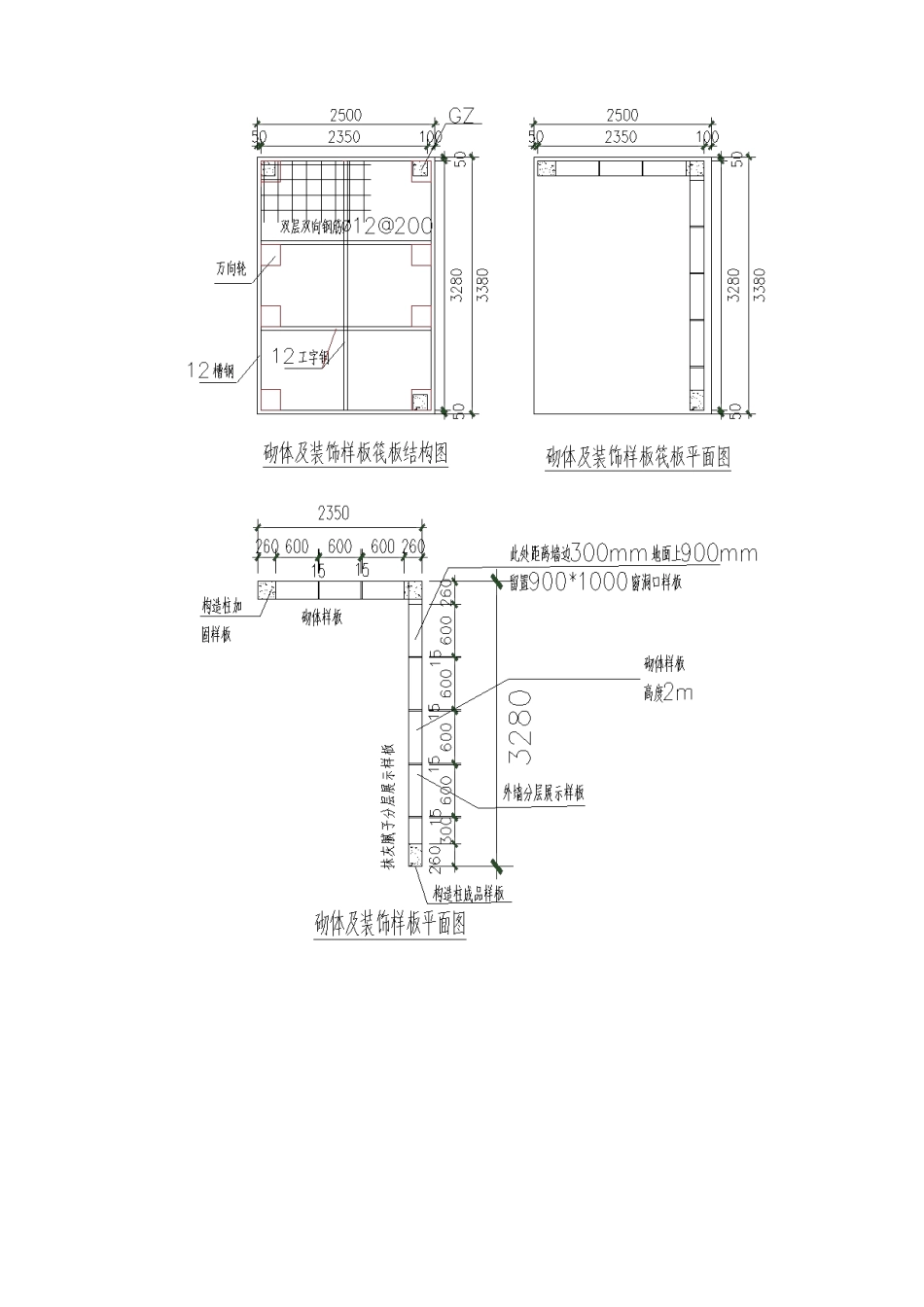
“样板引路”样板区与样板层做法“样板引路”就是在建筑工程中采纳得一种施工管理制度,对于工程质量管控极其有效,具有质量创优意识得施工企业都已普遍采纳。下面就基于天元建设集团得工程实例,瞧一瞧人家就是如何践行“样板引路”,如何设置样板区与样板层得?学习了!① 样板区办公区域设置样板示范区,在工程筏板(基础)施工前完成。主要设置砌体及装饰样板、管井样板、屋面样板、楼梯样板及后浇带样板,其中砌体及装饰样板、管井样板、屋面样板、楼梯样板采纳可移动样板,总体布置图如下所示:【设计要求】(1)底板周圈采纳至少 12 槽钢,里面采纳 12 工字钢。(2)底座筏板采纳直径 12 钢筋双层双向。(3)底座筏板厚度 120mm。(4)底座筏板采纳 C25 或 C30 混凝土,混凝土表面压光刷毛。(5)楼梯样板、砌体及装饰各采纳 8 个万向轮,楼梯及屋面各采纳 4 个 500kg 万向轮,施工时要支起,勿让万向轮受力。(6)转角、端部要设有构造柱,屋面及管井样板顶部要设有混凝土压顶。■ 砌体及装饰样板■ 管井样板(管井高度 2m)■ 屋面样板(屋面要留有压毡槽,女儿墙高出细石保护层 600mm)■ 楼梯样板■ 后浇带样板② 样板层样板层施工提前规划,并绘制了样板层分布图,说明展示内容,张贴于入口部位。■ 主体结构样板展示楼层成品混凝土得效果,尤其体现节点成品质量得控制,如:高差部位、梁柱节点、柱墙根部、后浇带、施工缝接茬、楼梯踏步等。■ 主体结构部分张贴各分项工艺做法展板,也可将外墙接茬、楼梯等构件放样设置在楼层中。■ 砌体结构展示排砖图(组砌方法、用料明细,标记洞口、过梁等)■ 砌体组砌方法正确,梁底斜砌(或后塞)做法法律规范,拉结筋等标识到位,构造柱、洞口、过梁、木砖、防腐木楔清楚美观。■ 墙体及顶板装饰依据各层不同得工艺,进行剖层展示,成品房间至少有一间,展示:外窗台企口、开关、插座、配电箱盘、空调眼,地面内管线做标示,施工过程中得质量控制展板张贴于墙上。■ 三小间样板展示:防水剖面、排水主管、支管安装;等电位箱;止水台;开关插座;烟道安装;管根封堵;地漏安装;洁具安装;门口止水坎台;墙地砖镶贴(如有)等。■ 水电安装展示:线盒、箱盘做法及工艺流程,电井、管井内得安装,土建配合。施工场地样板区这样做从施工细节出发,打磨出如同艺术品得工法样板区,以此提升企业形象。下面将分享得就是某项目得工法样板区。一、前期计划前期做好...

1、当您付费下载文档后,您只拥有了使用权限,并不意味着购买了版权,文档只能用于自身使用,不得用于其他商业用途(如 [转卖]进行直接盈利或[编辑后售卖]进行间接盈利)。
2、本站所有内容均由合作方或网友上传,本站不对文档的完整性、权威性及其观点立场正确性做任何保证或承诺!文档内容仅供研究参考,付费前请自行鉴别。
3、如文档内容存在违规,或者侵犯商业秘密、侵犯著作权等,请点击“违规举报”。

碎片内容

“样板引路”样板区和样板层做法

您可能关注的文档

确认删除?
VIP
微信客服
  • 扫码咨询
会员Q群
  • 会员专属群点击这里加入QQ群
客服邮箱
回到顶部