电脑桌面
添加小米粒文库到电脑桌面
安装后可以在桌面快捷访问

扣件式钢管脚手架计算书

扣件式钢管脚手架计算书_第1页
1/9
扣件式钢管脚手架计算书_第2页
2/9
扣件式钢管脚手架计算书_第3页
3/9
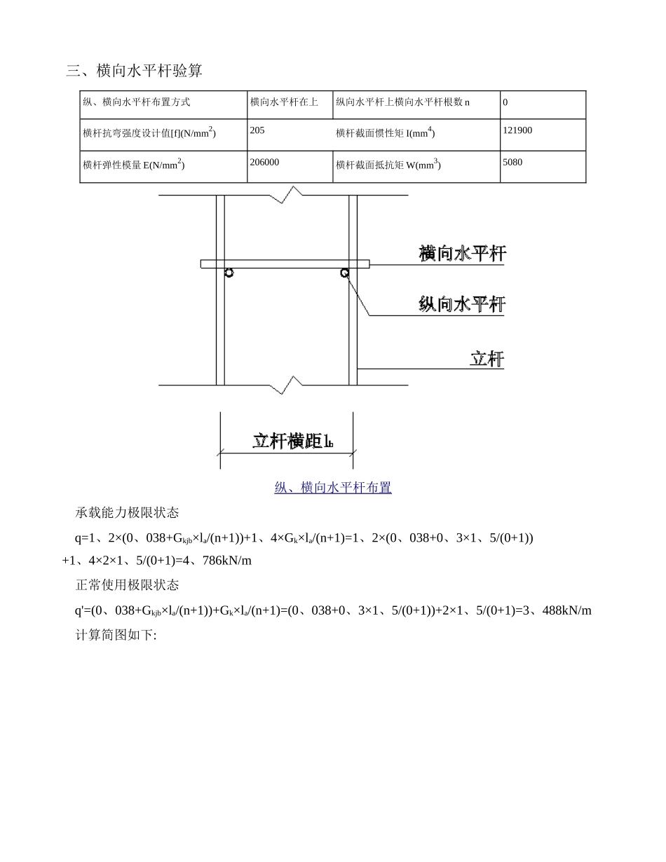
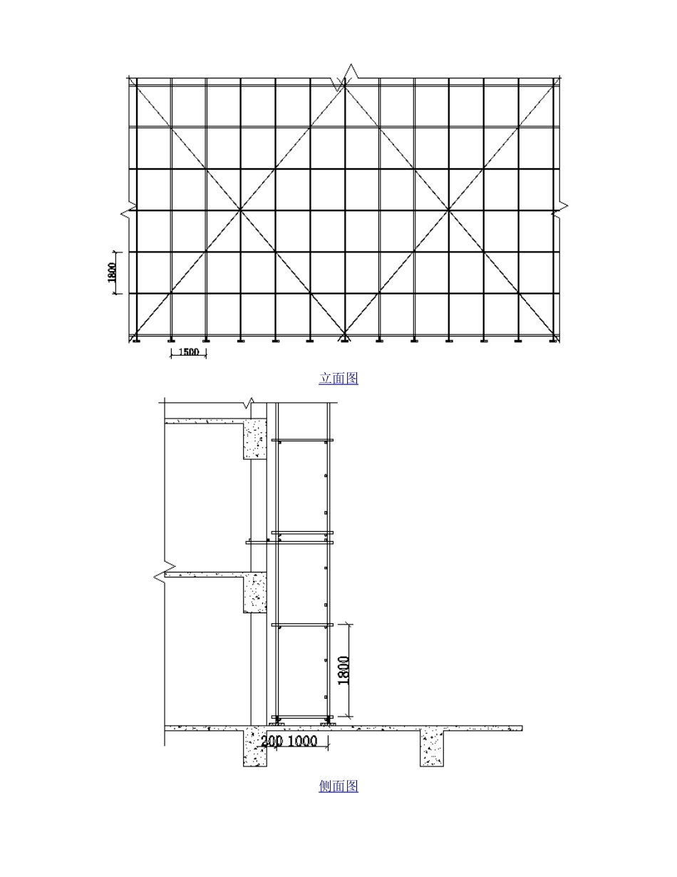
扣件式脚手架计算书 计算依据: 1、《建筑施工扣件式钢管脚手架安全技术法律规范》JGJ130-2025 2、《建筑结构荷载法律规范》GB50009-2025 3、《钢结构设计法律规范》GB50017-2025 4、《建筑地基基础设计法律规范》GB50007-2025 一、脚手架参数卸荷设置无脚手架搭设排数双排脚手架脚手架钢管类型Φ48×3、5脚手架架体高度 H(m)48立杆步距 h(m)1、8立杆纵距或跨距 la(m)1、5立杆横距 lb(m)1横向水平杆计算外伸长度 a1(m)0、15内立杆离建筑物距离 a(m)0、2双立杆计算方法不设置双立杆 二、荷载设计脚手架设计类型装修脚手架脚手板类型冲压钢脚手板脚手板自重标准值 Gkjb(kN/m2)0、3脚手板铺设方式2 步 1 设密目式安全立网自重标准值Gkmw(kN/m2)0、01挡脚板类型木挡脚板栏杆与挡脚板自重标准值 Gkdb(kN/m)0、17挡脚板铺设方式2 步 1 设每米立杆承受结构自重标准值gk(kN/m)0、129横向斜撑布置方式5 跨 1 设装修脚手架作业层数 nzj1装修脚手架荷载标准值 Gkzj(kN/m2)2地区浙江杭州市安全网设置全封闭基本风压 ω0(kN/m2)0、3风荷载体型系数 μs1风压高度变化系数 μz(连墙件、单立杆稳定性)0、81,0、81风荷载标准值 ωk(kN/m2)(连墙件、单立杆稳定性)0、243,0、243 计算简图:立面图侧面图 三、横向水平杆验算纵、横向水平杆布置方式横向水平杆在上纵向水平杆上横向水平杆根数 n0横杆抗弯强度设计值[f](N/mm2)205横杆截面惯性矩 I(mm4)121900横杆弹性模量 E(N/mm2)206000横杆截面抵抗矩 W(mm3)5080纵、横向水平杆布置 承载能力极限状态 q=1、2×(0、038+Gkjb×la/(n+1))+1、4×Gk×la/(n+1)=1、2×(0、038+0、3×1、5/(0+1))+1、4×2×1、5/(0+1)=4、786kN/m 正常使用极限状态 q'=(0、038+Gkjb×la/(n+1))+Gk×la/(n+1)=(0、038+0、3×1、5/(0+1))+2×1、5/(0+1)=3、488kN/m 计算简图如下: 1、抗弯验算 Mmax=max[qlb2/8,qa12/2]=max[4、786×12/8,4、786×0、152/2]=0、598kN·m σ=Mmax/W=0、598×106/5080=117、768N/mm2≤[f]=205N/mm2 满足要求! 2、挠度验算 νmax=max[5q'lb4/(384EI),q'a14/(8EI)]=max[5×3、488×10004/(384×206000×121900),3、488×1504/(8×206000×121900)]=1、809mm νmax=1、809mm≤[ν]=min[lb/150,10]=min[1000/150,10]=6、667mm 满足要求! 3、支座反力计算 承载能力极限状态 Rmax=q(lb+a1)2/(2lb)=4、786×(1+0、15)2/(2×1)=3、165kN 正常使用极限状态 Rmax'...

1、当您付费下载文档后,您只拥有了使用权限,并不意味着购买了版权,文档只能用于自身使用,不得用于其他商业用途(如 [转卖]进行直接盈利或[编辑后售卖]进行间接盈利)。
2、本站所有内容均由合作方或网友上传,本站不对文档的完整性、权威性及其观点立场正确性做任何保证或承诺!文档内容仅供研究参考,付费前请自行鉴别。
3、如文档内容存在违规,或者侵犯商业秘密、侵犯著作权等,请点击“违规举报”。

碎片内容

扣件式钢管脚手架计算书

领读文化+ 关注
实名认证
内容提供者

传播文化,铸就未来

确认删除?
VIP
微信客服
  • 扫码咨询
会员Q群
  • 会员专属群点击这里加入QQ群
客服邮箱
回到顶部