电脑桌面
添加小米粒文库到电脑桌面
安装后可以在桌面快捷访问

钢结构地脚螺栓埋设方案VIP免费

钢结构地脚螺栓埋设方案_第1页
1/7
钢结构地脚螺栓埋设方案_第2页
2/7
钢结构地脚螺栓埋设方案_第3页
3/7
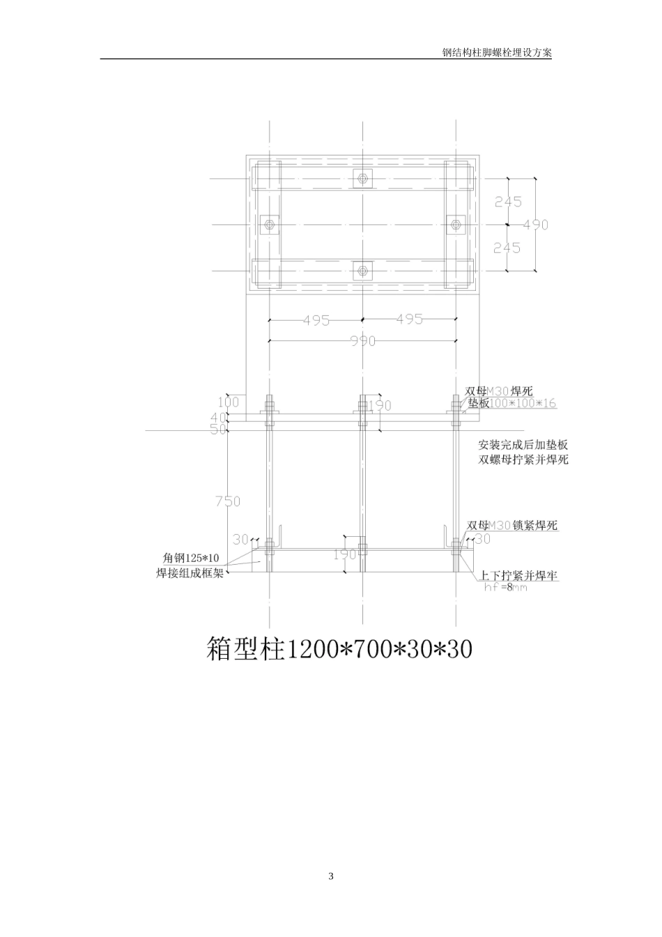
钢结构柱脚螺栓埋设方案钢结构柱脚螺栓埋设方案1、编制依据:1.1、工程图纸图名图号出图日期主楼基础~-2.100标高墙柱平面布置图结施-52012年9月53.400~58.500墙柱平面布置图主楼框架柱配筋表主楼构造边缘构件表结施-92012年9月主楼约束边缘构件配筋表结施-102012年9月钢结构节点详图(一)结施-432012年8月1.2、主要标准类别名称编号国家钢结构工程施工质量验收规范GB50205-2001国家工程测量规范GB50026-2007国家混凝土结构施工质量验收规范GB50204-2002建筑安装工程资料管理规程DB11-T695-2009二、工程概况:******工程钢结构柱脚螺栓规格均为Φ30,材质为Q345B,根据箱型柱截面形式不同,柱脚栓共分为4种形式布置,详见柱脚螺栓深化图(附图)。三、地脚螺栓的安装方案:柱脚螺栓埋设精度按《钢结构施工质量验收规范》中对钢结构安装工程对基础和支撑面的要求精度。针对上述精度的要求,柱脚螺栓的预埋方法根据图纸先将L125×4角钢焊接成框,将柱脚栓与定位框用螺栓加紧并点焊固定牢固,在基础筏板下铁铺设完毕后开始埋设,根据垫层上纵横轴线安放柱脚螺栓,并与周围钢筋马凳点焊固定。上铁铺设完成后,安装螺栓上标高调校螺母,盖定位钢板(螺栓上定位钢板采用5mm厚钢板制成,按箱型柱柱脚板螺栓口间距制作),然后用螺栓加紧固定、调平四、施工方法和程序:4.1、施工程序:绑扎下铁钢筋安装固定钢支架和柱脚螺栓组根据轴线位置1钢结构柱脚螺栓埋设方案调校柱脚螺栓位置点焊固定钢支架铺设上铁钢筋安装标高调平螺母(调平)安放定位钢板安装上螺栓夹紧定位钢板校核螺栓位置浇注砼初凝前复校混凝土养护拆除定位钢板。4.2、施工方法:a、准备工作1)严格按照图纸尺寸,对进场的地脚螺栓定位钢板进行验收,尤其是螺栓孔的相对位置不得超过2mm。2)根据设计院提供的图纸,校核垫层上纵横轴线。3)仪器工具准备工作,结合本工程的特点,地脚螺栓的埋设需要下列工具:经纬仪2台、水准仪1台、50m钢卷尺2把、2m钢尺3把、1m钢板尺3把、直角尺3把、钢划针4支、60-100mm水平尺2把。施工人员经技术交底。b、地脚螺栓的埋设:1)测量放线:弹放垫层上纵横轴线。在螺栓下定位框及螺栓上定位钢板上用钢针冲出钢柱中心线,保证其投影和钢柱的轴线重合。2)安装定位支架和柱脚螺栓:a、安装固定支架和柱脚螺栓组。b、用螺母调节柱脚螺栓的垂直度、水平度、标高,使柱脚螺栓组能精确对中。c、焊接固定支架呈稳定体,注意只允许与马凳钢筋焊接;d、铺设完上层盖铁后安装调平螺母并将螺母标高调至同一标高并安放定位钢板,拧上螺母夹紧钢板。e、全面检查复核,柱脚螺栓位置是否和图纸符合,f、柱脚螺栓丝扣及螺母用宽胶带包扎以保护丝扣(或用塑料套筒)。3)成品保护,在混凝土施工中严禁重物碰撞柱脚螺栓定位板,严禁在定位板上附着钢筋模板、架子、泵管等物。2钢结构柱脚螺栓埋设方案3钢结构柱脚螺栓埋设方案4钢结构柱脚螺栓埋设方案5钢结构柱脚螺栓埋设方案6钢结构柱脚螺栓埋设方案附图7

1、当您付费下载文档后,您只拥有了使用权限,并不意味着购买了版权,文档只能用于自身使用,不得用于其他商业用途(如 [转卖]进行直接盈利或[编辑后售卖]进行间接盈利)。
2、本站所有内容均由合作方或网友上传,本站不对文档的完整性、权威性及其观点立场正确性做任何保证或承诺!文档内容仅供研究参考,付费前请自行鉴别。
3、如文档内容存在违规,或者侵犯商业秘密、侵犯著作权等,请点击“违规举报”。

碎片内容

钢结构地脚螺栓埋设方案

您可能关注的文档

确认删除?
VIP
微信客服
  • 扫码咨询
会员Q群
  • 会员专属群点击这里加入QQ群
客服邮箱
回到顶部