工程制图试题答案(3) 一、填空题(20 分) 1、根据直线在投影面体系中对 3 个投影面所处的位置不同,可将直线分为 一般位置的直线...
工程制图试题答案(1 ) 一、填空题(2 0 分) 1 、投影法一般可分为两大类,一类叫做 中心投影法 ,一类叫做 平行投影法 。 2...
1 专业、班级 __________________ 学号 ______________ 姓名____________A卷 …………………密…………………….封…………………线...
1 2 3 4 5 6 7 8 9 1 0 1 1 1 2 1 3 1 4 1 5 1 6 1 7 1 8 1 9 2 0 2 1 2 2 2 3 2 4 2 5 4 .组...
工程制图第四章习题答案
工 程 制 图 规 范 Rule of engineering draw ing Q/PSB 413 -2007 2007-12-22 实施 前 言 本规范是根据我公司计算机辅...
试 题: 0 1 .填空题: 0102A01.一个完整的尺寸包括 、 、 和 。 0102A02.可见轮廓线用 线绘制;不可见轮廓线用 线绘制。 01...
1 工程制图考试试题(附答案) 一、填空题: 1.根据投射线的类型, 投影法可分为 中心投影法 和 平行投影法 。 2.根据投射线与投...
工程制图概述
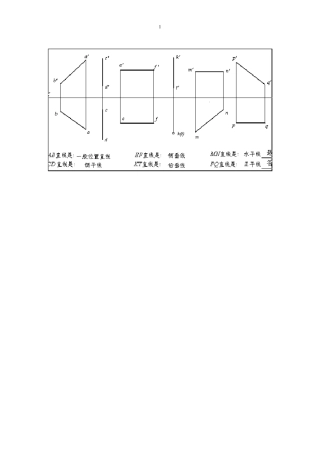
1 工程制图考试题 一. 判断空间位置(2 0 分) 在视图中标出直线AB 和CD、平面 P 和Q 的三面投影,并填写它们对投影面的相对位...
第三章 基本形体—— 三视图的投影 班级 学号 姓名 3 -1 、画三棱柱的投影图。 3 -2 、画出六棱柱的投影图。 3 -3 、画出右...
工程制图理论知识试题 一、单项选择(选择一个正确的答案,将相应的字母填入题内的括号中。) 1. 道德是指人与人、个人与集体、个人与社会...
第1页,共10页 工程制图期末复习试题 一、点、线的投影作图。 1、做出诸点的三面投影:A(25,15,20);点B 距离投影面W、V、H 分别为2...
1 一、单项选择题(每小题 3 分,共计 30 分) 1. A 3 号与 A 4 号 图纸幅面尺寸的关系是( )。 A 1 倍 B 2 倍 C 3...
1 教 案 纸 系 环艺设计 专业 班级 任课教师 章节 第 一 章 题目 制图基础 时间 2009 年 2 月 24 日 星期 二 第 ...
第1页,共10页 《工程制图基础》期末复习试题 一、点、线的投影作图。 1、做出诸点的三面投影:A(25,15,20);点B 距离投影面W、V、H...
工程制图-学习指南 一、单项选择题 1. GB 的正确含义是( ) A.国际标准代号 B.国家标准代号 C.某公司标准代号 D.某行业标准代号...
1 工 程 制 图复习题参考答案 一、填空题: 1 .根据投射线的类型, 投影法可分为 中心投影法 和 平行投影法 。 2 .根据投射...
1 中南大学网络教育课程考试(专科)复习题参考答案 工程制图 一、填空题: 1.根据投射线的类型, 投影法可分为 中心投影法 和 平...
工程制图复习题(附答案) 一、简答题 1.简述平面体截交线的特点及基本作图方法。 2.结构施工图主要包括哪些内容? 3.试说明剖面图标...

