电脑桌面
添加小米粒文库到电脑桌面
安装后可以在桌面快捷访问

整体式单向板肋梁楼盖设计

整体式单向板肋梁楼盖设计_第1页
1/5
整体式单向板肋梁楼盖设计_第2页
2/5
整体式单向板肋梁楼盖设计_第3页
3/5
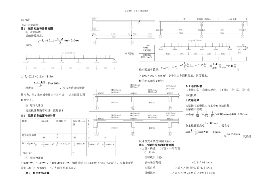
精品文档---下载后可任意编辑计算书(序号:44、开间尺寸 a=4200mm、进深尺寸b=6300、可变荷载 q=㎡)一、设计资料:扬州大学某办公楼, 层高均为5.0 米,试设计第三层楼盖。楼盖拟采纳整体式单向板肋梁楼盖,柱截面拟定为 400×400mm、混凝土强度等级均为 C30,钢筋均采纳 HRB400。楼盖建筑平面布置见附图;二、楼面做法:做法详苏 J01-2024-8/3,平顶做法:做法详苏 J01-2024-5/8⑴ 地砖楼面做法:详见任务书⑵三、目录① 荷载计算② 计算简图③ 弯矩设计值④ 承载力计算① 荷载② 计算简图③ 弯矩设计值和剪力设计值④ 承载力计算① 截面尺寸及支座简化② 荷载③ 主梁计算跨度的确定④ 弯矩设计值⑤ 承载力计算⑥ 主梁吊筋计算附图:楼盖结构平面布置图 【解】板按考虑塑性内力重分布方法计算。板厚:h≥ l40 =210040=52⋅5mm,取板厚=100mm。次梁截面高度应满足:h=( 118 ~ 112 )l=( 118 ~ 112 )×4200=(233~350)mm,考虑到楼面活荷载比较大,故取次梁截面高度h=350mm。梁宽度 b=( 13 ~ 12 )h=(116 ~175)mm,取=200mm。板的尺寸及支承情况见图 1a)(板与圈梁整浇,可视板的端支座为嵌固端)。① 荷载计算:10mm 厚地砖楼面 ×28=0.28 kN/m220mm 厚水泥砂浆面层 ×20=0.4 kN/m2100mm 厚钢筋混凝土现浇板 ×25=2.5 kN/m2恒荷载标准值 g =3.18 kN/m2恒荷载设计值 g ×3.18=kN/m2活荷载设计值 q ×5=7kN/m2合计 g + q =kN/m2精品文档---下载后可任意编辑(a)构造(b)计算简图图 1 板的构造和计算简图② 计算简图:板的计算跨度:边跨: l0=ln=(2.1−0.22 )m=2⋅0m中间跨: l0=ln=(2.1−0.2)m=1.9m跨度差2.0−1.91.9=5%<10%,可按等跨连续板计算内力。取 1 米宽板带作为计算单元,(计算简图如图1b 所示)。③ 弯矩设计值:连续板各截面弯矩设计值见表 1表 1 连续板各截面弯矩计算截面端支座边跨跨中离端第二支座离 端 第 二跨跨中中 间 跨 跨中中间支座弯矩计算系数− 116114− 111− 114M=α (g+q )l02(kN·m)− 116×10.8×2.02114 ×10.8×2.02− 111 ×10⋅8×1.924116×10.8×1.92− 114×10⋅8×1.92④ 承载力计算=1000mm ,=100mm ,= 100-20=80mm 。钢筋采纳 HRB400 级(=360 N/mm2),混凝土采纳采纳 C30(= N/mm2),=。各截面配筋见表 2:表 2 板的配筋计算板带部位截面端支座边跨跨中离端第二支座离端第二跨跨中中间跨跨中中...

1、当您付费下载文档后,您只拥有了使用权限,并不意味着购买了版权,文档只能用于自身使用,不得用于其他商业用途(如 [转卖]进行直接盈利或[编辑后售卖]进行间接盈利)。
2、本站所有内容均由合作方或网友上传,本站不对文档的完整性、权威性及其观点立场正确性做任何保证或承诺!文档内容仅供研究参考,付费前请自行鉴别。
3、如文档内容存在违规,或者侵犯商业秘密、侵犯著作权等,请点击“违规举报”。

碎片内容

整体式单向板肋梁楼盖设计

您可能关注的文档

一二三四传媒+ 关注
实名认证
内容提供者

大量资料供您选择,没有合适的可以联系小二。

确认删除?
VIP
微信客服
  • 扫码咨询
会员Q群
  • 会员专属群点击这里加入QQ群
客服邮箱
回到顶部