电脑桌面
添加小米粒文库到电脑桌面
安装后可以在桌面快捷访问

建筑面积计算案例

建筑面积计算案例_第1页
1/7
建筑面积计算案例_第2页
2/7
建筑面积计算案例_第3页
3/7
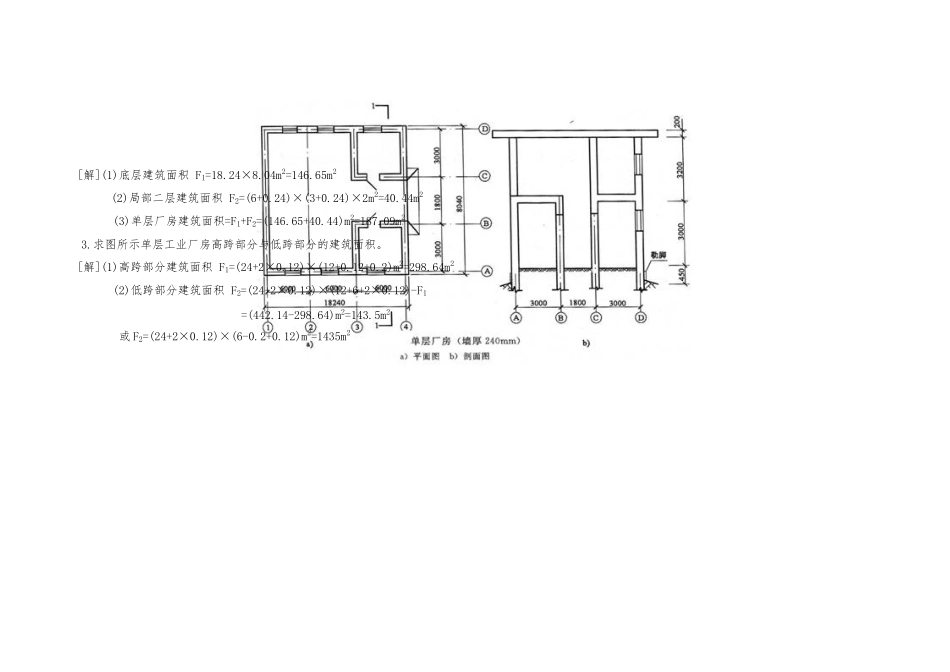
建筑面积案例1.计算图示某单层房屋的建筑面积。[解]建筑面积=外墙勒脚以上结构外围水平面积=(12+0.24)×(5+0.24)=64.14m22.如图所示,求其建筑面积。[解](1)底层建筑面积 F1=18.24×8.04m2=146.65m2(2)局部二层建筑面积 F2=(6+0.24)×(3+0.24)×2m2=40.44m2(3)单层厂房建筑面积=F1+F2=(146.65+40.44)m2=187.09m23.求图所示单层工业厂房高跨部分与低跨部分的建筑面积。[解](1)高跨部分建筑面积 F1=(24+2×0.12)×(12+0.12+0.2)m2=298.64m2(2)低跨部分建筑面积 F2=(24+2×0.12)×(12+6+2×0.12)-F1=(442.14-298.64)m2=143.5m2或 F2=(24+2×0.12)×(6-0.2+0.12)m2=1435m24.如图所示,计算高低联跨的单层建筑物的建筑面积。[解]Fl(高跨)=(24+O.24×2)×(12+0.25×2)m2=306.00m2F2(低跨)=(24+0.24×2)×(6-0.25+0.24)×2m2=293.27m2F(总面积)=(306.00+293.27)m2=599.27m25.某 6 层砖混结构住宅楼,2~6 层建筑平面图均一样,如图所示。阳台为不封闭阳台,首层无阳台,其他均与二层一样。计算其建筑面积。[解]首层建筑面积 F1=(9.20+0.24)×(13.2+0.24)m2=126.87m22~6 层建筑面积(包括主风光积和阳台面积) F2~6=Fz+Fy式中: Fz——主风光积 Fy 一一阳台面积Fz=Fl×5-126.87×5m2=634.35m2Fy=(1.5—0.12)×(3.3×2+0.06×2)×5×1/2m2=23.18m2F2~6=(634.35+23.18)m2=657.53m2总建筑面积 F=F1+ F2~6=(126.87+657.53)m2=784.40m26.求图所示建筑物的建筑面积。[解]地下室与附着建筑物外墙的出入口的建筑面积按其上口外墙的(不包括采光井、防潮层与其防护墙)外围的水平面积计算。F=[20×10.0+(2+0.12)×1.5+1.5×1]m2=204.68m27.求图示深基础做地下架空层的建筑面积。[解]用深基础做地下架空层加以利用,其层高超过 2.2m 的,按围护结构外围水平投影面积的一半计算建筑面积。F=(15.0×6.O)/2m2 =90.0/2m2=45.0m28.求图示建筑物的建筑面积。[解]建筑物设有伸缩缝时应分层计算建筑面积,并入所在建筑物建筑面积之。建筑物门厅、大厅不管其高度如何,均按一层计算建筑面积。门厅、大厅回廊部分按其水平投影面积计算建筑面积。=[20.5×40×3+30.0×14.5×2×2-10.O×(6.0+3.0-0.73)]m2=[2460+1742.9-82.7]m2=4120.2m29.求如图所示的室外楼梯建筑面积。[解]室外楼梯设置有三种情况:建筑物无楼梯,设室外楼梯;室有楼梯井并设有围护结构的室外楼梯;室有楼梯并设无围护结构的室外楼梯,建筑面积的计算规则如下:(1)建筑物无楼梯,设室外楼...

1、当您付费下载文档后,您只拥有了使用权限,并不意味着购买了版权,文档只能用于自身使用,不得用于其他商业用途(如 [转卖]进行直接盈利或[编辑后售卖]进行间接盈利)。
2、本站所有内容均由合作方或网友上传,本站不对文档的完整性、权威性及其观点立场正确性做任何保证或承诺!文档内容仅供研究参考,付费前请自行鉴别。
3、如文档内容存在违规,或者侵犯商业秘密、侵犯著作权等,请点击“违规举报”。

碎片内容

建筑面积计算案例

确认删除?
VIP
微信客服
  • 扫码咨询
会员Q群
  • 会员专属群点击这里加入QQ群
客服邮箱
回到顶部