百度文库- 让每个人平等地提升自我0 落地式扣件钢管脚手架专项方案工程名称:横八路道路建设项目建设单位:重庆市高等职业技术教育城实业...
扣件式钢管脚手架杆件搭接a 接头不在同步内(立面),扣件式钢管脚手架杆件搭接纵向水平杆接长宜采用对接、 用对接扣件连接, 接头距主...
扣件式钢管脚手架方案※外脚手架施工方案※【惠阳建筑工程总公司】2 第一章编制依据一、根据君悦豪庭(一期)C、D 栋工程施工图及有关文...
分部(分项)工程施工安全技术交底书单位:北京城建集团交底日期:年月日工程名称:合肥新城国际Ⅰ期工程分部(分项)工程A、B 栋一层扣件...
扣件式钢管脚手架在高支模中的应用韦安富(中铁十一局集团城市轨道工程有限公司武汉430074 )摘要: 本文主要通过工程实例介绍扣件式钢管...
安全技术交底交底单位名称:中铁四局有限公司广州市轨道交通十三号线施工七标土建工程项目经理部编号 :WCLZ-20130903 共 7 页第页工程...
仅供参考 [整理 ] 第 1 页 共 5 页安全管理文书扣件式钢管脚手架安全操作规程日期: __________________单位: ________________...
扣 件 式 双 排 钢 管 脚 手 架 搭 设 工 程1、一般要求( 1)建筑登高作业(架子工) ,必须经专业安全技术培训,考核合格...
扣件式钢管模板支架的设计计算扣件式钢管模板支架的设计计算××省××市××建设有限公司二 O 一四年七月十八日前言近几年,国内连续发...
1 / 12 扣件式钢管脚手架验收表AQ2.10.2.1.2 工程名称广州康臣药业有限公司新厂质检办公楼施工单位广东省第一建筑工程有限公司项目负责...
NANTONG 南通建筑工程总承包有限公司海门中南世纪城2.4 期工程- 1 - 扣件式钢管外脚手架施工方案1. 编制依据及工程概况1.1 编制依据...
扣 件 式 钢 管 悬 空 脚 手 架 施 工 作 业 指 导 书为使扣件式钢管悬空脚手架施工规范化,制订了扣件式钢管悬空脚手架施...
平面图立面图满足要求!满足要求!满足要求!满足要求!满足要求!满足要求!满足要求!满足要求!单扣件在扭矩达到 40~65N· m且无质量...
扣件式脚手架搭设常用技术要求术语:图1双排扣件式钢管脚手架各杆件位置1—外立杆; 2—内立杆; 3—横向水平杆; 4—纵向水平杆; 5—...
扣 件 式 、 碗 扣 式 、 承 插 型 盘 扣 式 、 承 插 型 轮 扣 式四种模板支架的支架形式对比一、目前工地常用四种模...
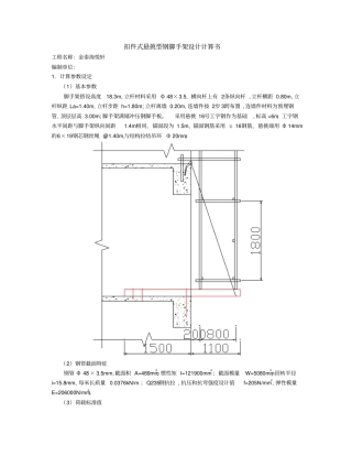
扣件式悬挑型钢脚手架设计计算书工程名称:金泰海悦轩编制单位:1.计算参数设定(1)基本参数脚手架搭设高度18.3m, 立杆材料采用 Φ 48...
异型孔向导中采用3D 草图来生成孔特征会给后续调用螺钉添加智能扣件带来麻烦,螺钉沉的位置不对,如下图所示 ..............................
儋州中南 . 西海岸 1.2 期 16#.17#.18# 楼工程江西建工第二建筑责任有限公司目录一、工程概况 . ...................................
悬挑式扣件钢管脚手架计算书计算参数 : 一、大横杆的计算大横杆的计算强度小于205.0N/mm2, 满足要求 ! 大横杆的最大挠度小于1500.0/15...
建 筑 施 工 现 场 钢 管 扣 件 安 全 管 理 规 定第一条(目的依据)为了加强本市建筑施工钢管、扣件等构配件的规范管理,...

