电脑桌面
添加小米粒文库到电脑桌面
安装后可以在桌面快捷访问

《钢结构设计原理》复习题

《钢结构设计原理》复习题_第1页
1/15
《钢结构设计原理》复习题_第2页
2/15
《钢结构设计原理》复习题_第3页
3/15
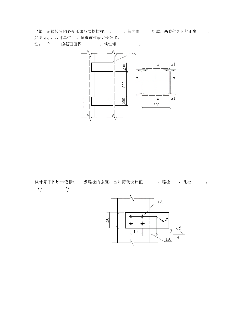
2011 年课程考试复习题及参考答案 钢结构设计原理 一、填空题: 1.钢结构计算的两种极限状态是 和 。 2.提高钢梁整体稳定性的有效途径是 和 。 3.高强度螺栓预拉力设计值与 和 有关。 4.钢材的破坏形式有 和 。 5.焊接组合工字梁,翼缘的局部稳定常采用 的方法来保证,而腹板的局部稳定则常采用 的方法来解决。 6.高强度螺栓预拉力设计值与 和 有关。 7.角焊缝的计算长度不得小于 ,也不得小于 ;侧面角焊缝承受静载时,其计算长度不宜大于 。 8.轴心受压构件的稳定系数φ 与 、 和 有关。 9.钢结构的连接方法有 、 和 。 10.影响钢材疲劳的主要因素有 、 和 。 11.从形状看,纯弯曲的弯矩图为 ,均布荷载的弯矩图为 ,跨中央一个集中荷载的弯矩图为 。 12.轴心压杆可能的屈曲形式有 、 和 。 13.钢结构设计的基本原则是 、 、 和 。 14.按焊缝和截面形式不同,直角焊缝可分为 、 、 和 等。 15.对于轴心受力构件,型钢截面可分为 和 ;组合截面可分为 和 。 16.影响钢梁整体稳定的主要因素有 、 、 、 和 。 二、问答题: 1.高强度螺栓的 8.8级和 10.9级代表什么含义? 2.焊缝可能存在哪些缺陷? 3.简述钢梁在最大刚度平面内受荷载作用而丧失整体稳定的现象及影响钢梁整体稳定的主要因素。 4.建筑钢材有哪些主要机械性能指标?分别由什么试验确定? 5.什么是钢材的疲劳? 6.选用钢材通常应考虑哪些因素? 7.在考虑实际轴心压杆的临界力时应考虑哪些初始缺陷的影响? 8.焊缝的质量级别有几级?各有哪些具体检验要求? 9.普通螺栓连接和摩擦型高强度螺栓连接,在抗剪连接中,它们的传力方式和破坏形式有何不同? 10.在计算格构式轴心受压构件的整体稳定时,对虚轴为什么要采用换算长细比? 11.轴心压杆有哪些屈曲形式? 12.压弯构件的局部稳定计算与轴心受压构件有何不同? 13.在抗剪连接中,普通螺栓连接和摩擦型高强度螺栓连接的传力方式和破坏形式有何不同? 14.钢结构有哪些连接方法?各有什么优缺点? 15.对接焊缝的构造有哪些要求? 16.焊接残余应力和焊接残余变形是如何产生的?焊接残余应力和焊接残余变形对结构性能有何影响?减少焊接残余应力和焊接残余变形的方法有哪些? 17.什么叫钢梁丧失整体稳定?影响钢梁整体稳定的主要因素是什么?提高钢梁整体稳定的有效措施是什么? 18.角焊缝的计算假定是什么?角焊缝有哪些主要构造要求? 19.螺栓...

1、当您付费下载文档后,您只拥有了使用权限,并不意味着购买了版权,文档只能用于自身使用,不得用于其他商业用途(如 [转卖]进行直接盈利或[编辑后售卖]进行间接盈利)。
2、本站所有内容均由合作方或网友上传,本站不对文档的完整性、权威性及其观点立场正确性做任何保证或承诺!文档内容仅供研究参考,付费前请自行鉴别。
3、如文档内容存在违规,或者侵犯商业秘密、侵犯著作权等,请点击“违规举报”。

碎片内容

《钢结构设计原理》复习题

您可能关注的文档

确认删除?
VIP
微信客服
  • 扫码咨询
会员Q群
  • 会员专属群点击这里加入QQ群
客服邮箱
回到顶部