电脑桌面
添加小米粒文库到电脑桌面
安装后可以在桌面快捷访问

跨既有线施工方案

跨既有线施工方案_第1页
1/12
跨既有线施工方案_第2页
2/12
跨既有线施工方案_第3页
3/12
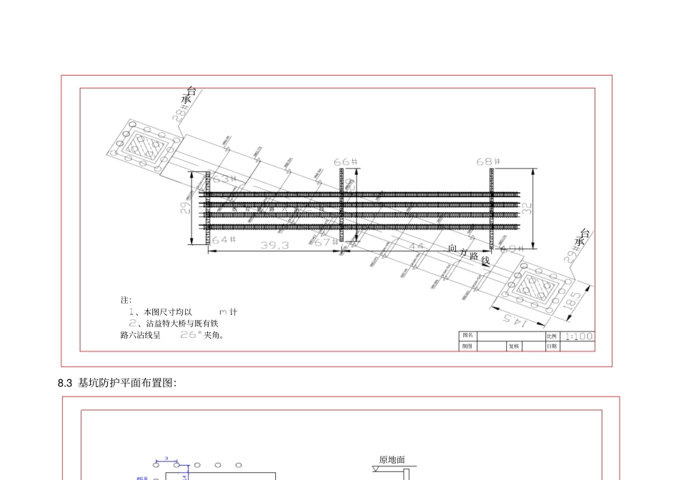
8. 附件8.1 沾益特大桥与六沾铁路走向图:沾益特大桥 27~29 号墩连续梁中心里程DIK1041+500,上跨六沾铁路,平面交角26 度,沾益铁路梁底距离六沾轨面要求净高为7.96m,沾益铁路与六沾铁路位置关系如附图所示。8.2 沾益特大桥跨六沾铁路平面布置图:沾益特大桥#承台14. 5*18. 5沾益特大桥#承台14. 5*18. 5既有六沾二线铁路既有铁路线热侵锌钢柱日期制图图名复核.43.05.原地面标高:1882.928墩顶标高承台底标高: 1878.142. 图中尺寸均以为单位. 沾益特大桥 28#墩柱顶经测量计算标高低于沾益既有线上的热浸锌钢柱94阻挡了现浇梁跨越。3.29#墩柱顶标高只高于既有线热浸锌钢柱 0.544,对施工有所不便。墩顶标高: 1894.642热浸钢柱顶标高:1894.098热浸钢柱顶标高:1894.204承台底标高: 1883.2598.3 基坑防护平面布置图:注:、本图尺寸均以计、沾益特大桥与既有铁路六沾线呈夹角。图名制图复核日期比例既有铁路六沾二线线路方向承台承台原地面8.4 墩顶 0#块膺架计算书 1.计算依据《连续梁施工设计图》《结构力学》 、《材料力学》、《桥梁工程》《铁路桥梁钢结构设计规范》(TB10002.2-2005 )《路桥施工计算手册》 (周兴水等著,人民交通出版社)《铁路桥涵设计基本规范》(TB10002.1-2005)《铁路混凝土工程施工技术指南》(TZ210-2005 )《铁路混凝土与砌体工程施工规范》(TB10210-2001) 2.支架结构材料参数1) 木材( A-2 红杉木):顺纹弯应力13aMP弯曲剪应力2.0aMP弹性模量410aEMP2) Q235 钢材 ( 依据现行《铁路桥梁钢结构设计规范》(TB10002.2-2005)取值 ) :拉压应力135aMP弯曲应力140awMP剪应力80aMP弹性模量52.1 10aEMP 3.基本资料0#块长度 12m(4.5+3.0+4.5m ),墩顶处箱梁高6.65m,端头箱梁高5.958m,箱梁底板宽 6.7m,顶板宽 12.0m, 0# 块砼重 192.5t ,1#块分别重 112.6t 。 0#块重约 650t 。图 1 0 号块重量分配 4.支架结构支架结构见下图:支架结构图 5.计算荷载种类及组合(1) 计算荷载种类①新浇砼容重按26kN/m3 计算,超灌系数取1.05 ;②模板、支架自重:按实际材料、尺寸计算;③施工人员、施工料具堆放、运输荷载: ④倾倒混凝土时产生的冲击荷载:⑤振捣混凝土产生的荷载: (2) 荷载组合:计算强度时 :p1= ① +②+③+④ +⑤计算刚度时 :p2= ① +② 6.支架结构检算(1) 方木计算采用红衫木,纵桥向间距45cm,偏安全按简支梁计算,腹板下方木计算跨度L=0.3...

1、当您付费下载文档后,您只拥有了使用权限,并不意味着购买了版权,文档只能用于自身使用,不得用于其他商业用途(如 [转卖]进行直接盈利或[编辑后售卖]进行间接盈利)。
2、本站所有内容均由合作方或网友上传,本站不对文档的完整性、权威性及其观点立场正确性做任何保证或承诺!文档内容仅供研究参考,付费前请自行鉴别。
3、如文档内容存在违规,或者侵犯商业秘密、侵犯著作权等,请点击“违规举报”。

碎片内容

跨既有线施工方案

您可能关注的文档

确认删除?
VIP
微信客服
  • 扫码咨询
会员Q群
  • 会员专属群点击这里加入QQ群
客服邮箱
回到顶部