电脑桌面
添加小米粒文库到电脑桌面
安装后可以在桌面快捷访问

全现浇剪力墙结构钢筋绑扎工程技术交底VIP免费

全现浇剪力墙结构钢筋绑扎工程技术交底_第1页
1/6
全现浇剪力墙结构钢筋绑扎工程技术交底_第2页
2/6
全现浇剪力墙结构钢筋绑扎工程技术交底_第3页
3/6
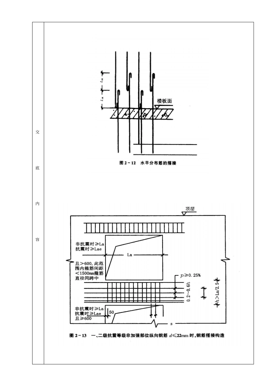
全现浇剪力墙结构钢筋绑扎工程分项工程质量技术交底卡GD2301003施工单位工程名称分部工程交底部位日期年月日交底内容一、施工准备(一)作业条件1、据设计图纸要求的规格尺寸,选择适当的进料长度,以免浪费,并把钢筋加工成型或点焊网片。2、钢筋表面的铁锈在绑扎前清除干净;网片几何尺寸、规格及焊接质量检验合格后方可使用。3、弹好墙身、洞口线,并将施工缝处的松散混凝土剔凿干净。4、电渣压力焊工人应经内部培训,并在班前焊试件,试验合格,才能上岗操作。5、预制带火烧丝的水泥砂浆块或购置塑料卡作保护层。6、熟悉图纸,作好技术交底。(二)材质要求钢筋具有出厂质量证明书并经复试检验合格。(三)施工机具钢筋钩子、撬棍、网筋板子、绑扎架、钢丝刷子、钢筋运输车、石笔、墨斗、尺子等。二、质量要求具体要求请参照本书“箱型基础工程”章节中“钢筋工程”相应部分。三、工艺流程修理伸出筋→焊接、绑扎节点竖向钢筋→绑扎墙体钢筋→网片定位→修整四、操作工艺(一)修理预留伸出筋根据所弹墙线,调整下层墙体伸出的搭接筋,使其位置正确。若下层墙体伸出钢筋位置偏差较大,应征求设计人员处理意见。一般按1:6调整,与钢筋网片搭接好。(二)焊接、绑扎节点竖向钢筋对暗柱、门窗洞口等边缘构件处的竖向受力筋宜采用焊接或机械连接,对三、四级抗震等级,当D≤22mm时,可采用非焊接的搭接接头。从经济和操作方便考虑,优先使用电渣压力焊。洞口周围加强钢筋的锚固长度应符合《建筑物抗震构造详图》(03G329—l)的要求。(三)墙体钢筋的绑扎1、现场钢筋的绑扎:先立2~4根竖筋,并画好横筋分挡标志,然后于下部及齐胸处绑两根横筋固农好位置,并在横筋上画好分档标志,然后绑其余竖筋,最后绑其余横筋。钢筋绑扎完毕后,各种操作人员不准任意蹬踏钢筋。2、网片绑扎:网片立起后用木方临时支撑,然后逐根绑扎根部搭接,在钢筋搭接部分的中心和两端共绑三扣。(四)钢筋网片的定位与连接现浇剪力墙设计一般为双层钢筋,在两层钢筋之间要绑扎拉接筋和支撑筋,以保证钢筋的正确位置。拉接筋加6~φ10mm钢筋,绑扎时纵横间距不大于600mm。绑扎在纵横向钢筋的交叉点上,勾住外边筋。支撑筋采用φl2钢筋,间距1000m左右,两端刷防锈漆。另有一种梯形支撑筋,用两根竖筋(与墙体竖筋同直径同高度)与拉筋焊接成形,绑在墙体网片之间起到撑、拉交底内容作用,间距1200mm。在横筋上绑扎砂浆垫块或塑料卡,来保证保护层的厚度。其间距不大于1000mm,也可以采用“梯子筋”来开成混凝土保护层。(五)修整大模板合模以后,对伸出的墙体钢筋进行修整,用水平向梯形架固定,以保证浇筑混凝土时钢筋的准确位置。浇注混凝土时指定专人看管钢筋。五、应注意的质量问题1、当剪力墙端部未设计暗柱时,端部应配置U形钢筋与水平分布筋搭接,搭接长度为纵向钢筋的锚固长度。2、预埋件要用火烧丝绑扎牢固,或点焊在箍筋上。3、保证预埋电线管的位置,电线管与钢筋冲突时,将竖直钢筋沿墙面左右弯曲,横向钢筋上下弯曲,严禁任意切断钢筋。对于较大的洞口应在绑扎时预留。4、节点部位需特别注意,锚固长度和加强筋应符合设计要求,若设计无要求时参照下列图2-10~图2-14执行。交底内容交底内容专业技术负责人:交底人:接受人:美文欣赏1、走过春的田野,趟过夏的激流,来到秋天就是安静祥和的世界。秋天,虽没有玫瑰的芳香,却有秋菊的淡雅,没有繁花似锦,却有硕果累累。秋天,没有夏日的激情,却有浪漫的温情,没有春的奔放,却有收获的喜悦。清风落叶舞秋韵,枝头硕果醉秋容。秋天是甘美的酒,秋天是壮丽的诗,秋天是动人的歌。2、人的一生就是一个储蓄的过程,在奋斗的时候储存了希望;在耕耘的时候储存了一粒种子;在旅行的时候储存了风景;在微笑的时候储存了快乐。聪明的人善于储蓄,在漫长而短暂的人生旅途中,学会储蓄每一个闪光的瞬间,然后用它们酿成一杯美好的回忆,在四季的变幻与交替之间,散发浓香,珍藏一生!3、春天来了,我要把心灵放回萦绕柔肠的远方。让心灵长出北归大雁的翅膀,乘着吹动彩云的熏风,捧着湿润江南的霡霂,唱着荡漾晨舟的渔歌,沾着充盈夜窗的芬芳,回到久别的家乡。我翻开解冻...

1、当您付费下载文档后,您只拥有了使用权限,并不意味着购买了版权,文档只能用于自身使用,不得用于其他商业用途(如 [转卖]进行直接盈利或[编辑后售卖]进行间接盈利)。
2、本站所有内容均由合作方或网友上传,本站不对文档的完整性、权威性及其观点立场正确性做任何保证或承诺!文档内容仅供研究参考,付费前请自行鉴别。
3、如文档内容存在违规,或者侵犯商业秘密、侵犯著作权等,请点击“违规举报”。

碎片内容

全现浇剪力墙结构钢筋绑扎工程技术交底

文库当当响+ 关注
实名认证
内容提供者

该用户很懒,什么也没介绍

确认删除?
VIP
微信客服
  • 扫码咨询
会员Q群
  • 会员专属群点击这里加入QQ群
客服邮箱
回到顶部